福井県高浜町の自然のふところに抱かれた、飾らない鉄骨倉庫。
今回は、福井県大飯郡高浜町の貸倉庫の紹介です。
舞鶴若狭自動車、大飯高浜IC(インターチェンジ)から車で約5分のところに在ります。
山あいの静けさに包まれるように、ひっそりと佇む一棟の鉄骨倉庫。

福井県初進出です。
倉庫としてのポテンシャル
今回の鉄骨倉庫は、使い勝手も抜群です。

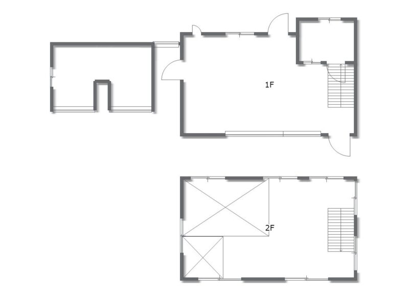
正面には電動シャッターが備わり、ボタンひとつでスムーズに開閉可能。

天井高のある大空間は車両の出入りも難なくこなし、荷物の積み下ろしや整備作業にも向いています。

さらに、建物内には2階部分のスペースも確保されており、資材置き場や事務スペースなど、用途に応じて柔軟に使い分けられるのも魅力です。

また、倉庫内に事務所として活用できるスペースがあります。

エアコン(残置物)が設置してあるので、
休憩場所や、温度管理が必要な物の保管場所等として活用いただけます。
無骨な見た目とは裏腹に、機能性はしっかり備わった“頼れる倉庫”です。

ちなみに、入り口も広々で大型車両も安心して入れます。敷地内も広く、方向転換、旋回も可能です。
大きな『おまけ』
今回の物件の特徴は、敷地の広さだけではありません。
広々とした敷地内には、メインとは別に大きめの附属倉庫がもう一棟ついています。

大きな『おまけ』です。
この倉庫が思いのほか存在感があり、資材保管用としてはもちろん、機械置き場、屋内の作業スペース、サブ拠点としても活用できるスケール。

メイン倉庫と合わせて使うことで、事業規模に合わせた柔軟なレイアウトが可能になります。
『倉庫×倉庫』という組み合わせがつくる余裕は、地方ならではの贅沢です。
まとめ
今回ご紹介させていただいた高浜町の貸倉庫は、

構造:鉄骨造
面積:約173㎡
賃料:165,000円(税込)
礼金:0円
保証金:2ヵ月
築年月日:2000年12月
以前は、農機具屋さんの倉庫として利用されていました。
大型車両を使う業種、資材のストックを多く抱える業態、
作業場や工場、アトリエなど、多岐にわたる用途に対応できる懐の深さがあります。
なお、現状トイレはありませんが以前設置されていたことから、借主さんの方で設置してもらうことは可能です。

給水は地下水を利用する形になります。
自然に寄り添う立地だからこそ、必要に応じて設備を整えながら使い勝手を作っていくスタイルが合うはず。

静かな環境の中で、事業の“基地”として育てていけるポテンシャルを感じる物件です。
ASOBI不動産は、京都市中京区に事務所を構えていますが、京都府内、大阪府内、近畿圏内どこでも物件紹介可能ですので、一度ご相談ください。リフォームのみのご相談も承っております。
不動産、リフォームのご相談は、ASOBI不動産へお任せください。
物件探しを依頼する
ブログ掲載物件はもちろん、お客様のご要望を伺い真心込めて物件をお探し致します。






