時代の交差点に建つ、77,000円のタイムマシン
今回は六角通りの一角に佇むこちらの四角い住居物件「星の子六角ビル」から405号室のご紹介です。
今回の物件は外観・共用部分と室内に世代間ギャップがありすぎたので、ここからはタイムマシンと呼ばせていただきます。
まずはざっくりとした概要からご覧ください。
2階までは飲食店が入っているテナントです。
3階は事務所、美容系の店舗、住居が混在しています。
見た目も名前もどこか懐かしい「星の子六角ビル」は、1979年6月生まれの46歳。
家賃69,000円、共益費8,000円で月77,000円のこちらのタイムマシン、外観だけを見ると昭和レトロ感満載ですよね。
3〜5階が住居用スペースになっておりますが、事業用としても利用可能とのことでした。
(!)事業利用の場合、賃料及びその他契約内容が変わります。詳しくは弊社ホームページよりお問い合わせください。
事務所賃料:75,900円
管理費/共益費:8,800円
道のり
京都市営地下鉄烏丸線「烏丸御池駅」から徒歩6分、もしくは阪急京都線「烏丸駅」から徒歩10分となります。
どちらから歩いても素敵な街並みでカフェや施設もたくさんなので、寄り道しがいがありそうです。
ご近所情報
タイムマシン近隣には皆様ご存知の聖徳太子が創建した
『六角堂 紫雲山 頂法寺』がございます。
なんと生け花発祥の地だそうです。
詳しくは、こちらをご覧ください。
https://www.ikenobo.jp/rokkakudo/
境内には枝垂れ桜をはじめとする様々な桜の木がお寺を囲むように植えられているので、春にはお散歩しながらお花見などもお楽しみいただけます。
内部に潜入
タイムマシンなので、潜入調査報告書のような気持ちで失礼しております。
どうか最後までお付き合いよろしくお願いいたします。
エントランスまでに近代的な乗り物が。
(LUUPのレンタルポートです。)
この青く発光しているように見えるだけで実際はそうでもないエントランス。
SF好きな方はワクワクしてくること間違い無しです。
ちなみにオートロック、エレベーターはございません。
『現代からちょっと昔へ』5階まで階段で束の間の冒険のお時間です。
上っていくと所々にこちらが。
もしかして時空の隙間から漏れた光…?と思いきや壁紙装飾用のタイルシールでした。
垣間見えるレトロ感、いいですねぇ。
この景色を5回通り過ぎれば、タイムマシンの入り口はもうすぐそこです。
内部に潜入!
いよいよ搭乗口へ。参ります。
今回の口から飛び出た心の声は(わー銀色!かっこいい!)でした。
エントランスから玄関前までは、上っていく程どんどん昔に引き戻されていくような気持ちだったのに、ドアを開けるとこの給排水管見え見え無骨ステンレスキッチン。
グッときます。
続きまして、玄関右手にございますバスルームへ。
感動の浴室乾燥機が完備されておりました。
バルコニーはありません、お洗濯物はこちらで乾かしましょう。
お部屋で乾かしたいという方は室内用物干しラックのご購入をご検討くださいませ。
お手洗いはゆとりがある広さです。
端にちらりと見えている窓は、お手洗いを出たところにある洗濯機置き場とシェアするような作りになっています。
異時同居の空間へ
まずは収納。
棚の高さは調節不可ですが、鏡やポールがついていて使い勝手は良さそうです。
リビングです。
現代的なキッチンと対照的にこの出窓や収納の扉に残るレトロ。
ほっとします。
さらに奥へ進みましょう。
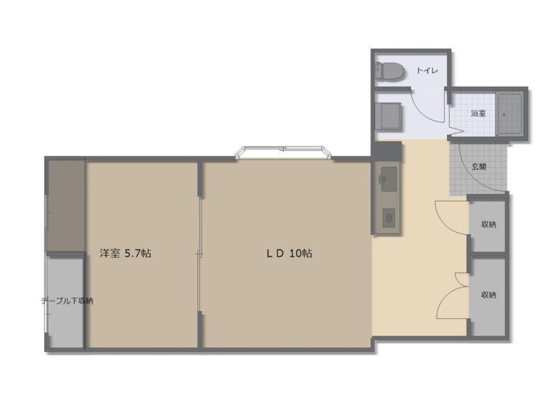
洋室は5.7帖と少しコンパクトで、引き戸を閉めると秘密基地感が出る絶妙な空間です。
窓際の収納付きカウンターテーブルは少し高さがあるので、限られた空間にも動きをもたらしてくれます。
ストレートにテーブルとして使うもよし、趣味のものを飾ってディスプレイ棚としてもよし、あとはここに暮らしていた人の数だけ使い方があるとしておきましょう。
タイムマシン内オススメエリア
昔情緒あふれるレトロな外観なのに、エントランスにLUUPがあったり浴室乾燥機や温水洗浄便座がついていたり。
忙しい現代人のニーズにしっかり応えてくれるギャップ多すぎタイムマシンでした。
特に刺さったポイントを2つご紹介します。
1:キッチン
わたくし、お料理が得意なわけではありません(キリッ
機能としてではなく、インテリアとして非常にグッときました。
あの外観にこの設備、というギャップです。
SFや特撮を思い起こさせる銀ピカや、剥き出しの配管によるメカ感も素敵ですよね。
2:フロア共用部分
私がこのビルをタイムマシンと呼びたくなった一番の理由がここでした。
実際に見ると、少し前の集合住宅のような温かみがあるんです。
撮影しながら、学生時代に見た『奇跡』という映画を思い出して少し心がぎゅっとなりました。
https://www.youtube.com/watch?v=OMGI3UxCFS8
まとめ
いかがでしたでしょうか?
今にいながら昔に帰ったような温かい気持ちになれそうでとってもオススメのこちらのタイムマシン。
以下詳細です。
【物件名】星の子六角ビル
【所在地】京都府京都市中京区堂之前町231
【階数/号室】5階/504号室
【賃料:住居利用/事業利用】69,000円/75,900円(税込)
【共益費:住居利用/事業利用】8,000円/8,800円(税込)
【間取り】1LDK/32㎡
【その他】ペット相談可

ASOBI不動産は、京都市上京区に事務所を構えていますが、京都府内、大阪府内、近畿圏内どこでも物件紹介可能ですので、一度ご相談ください。リフォームのみのご相談も承っております。不動産、リフォームのご相談は、ASOBI不動産へお任せください。
物件探しを依頼する
ブログ掲載物件はもちろん、お客様のご要望を伺い真心込めて物件をお探し致します。






